03

AA

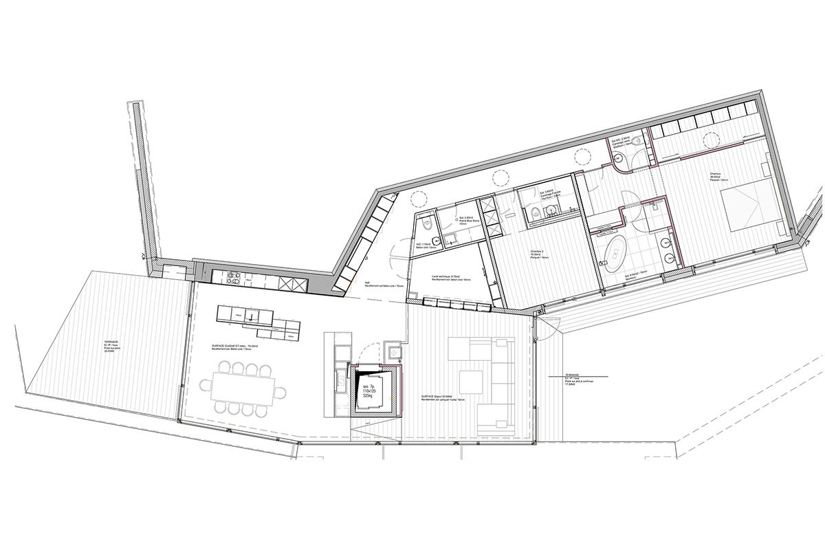
Aménagement d'un appartement à Auvernier

Le client souhaitait retravailler l’ensemble des plans de son logement pour réorganiser les différents espaces de vie en créant une ambiance chaleureuse et contemporaine. Nous avons privilégié les matériaux bruts tels que le bois, le béton et la céramique et avons ainsi créé des agencements uniques, qui permettent un contraste subtil avec les objets de leurs voyages.

AA Aménagement d'un appartement à Auvernier AA Aménagement d'un appartement à Auvernier AA Aménagement d'un appartement à Auvernier AA Aménagement d'un appartement à Auvernier AA Aménagement d'un appartement à Auvernier AA Aménagement d'un appartement à Auvernier AA Aménagement d'un appartement à Auvernier AA Aménagement d'un appartement à Auvernier AA Aménagement d'un appartement à Auvernier AA Aménagement d'un appartement à Auvernier AA Aménagement d'un appartement à Auvernier AA Aménagement d'un appartement à Auvernier AA Aménagement d'un appartement à Auvernier AA Aménagement d'un appartement à Auvernier AA Aménagement d'un appartement à Auvernier AA Aménagement d'un appartement à Auvernier