01

AB

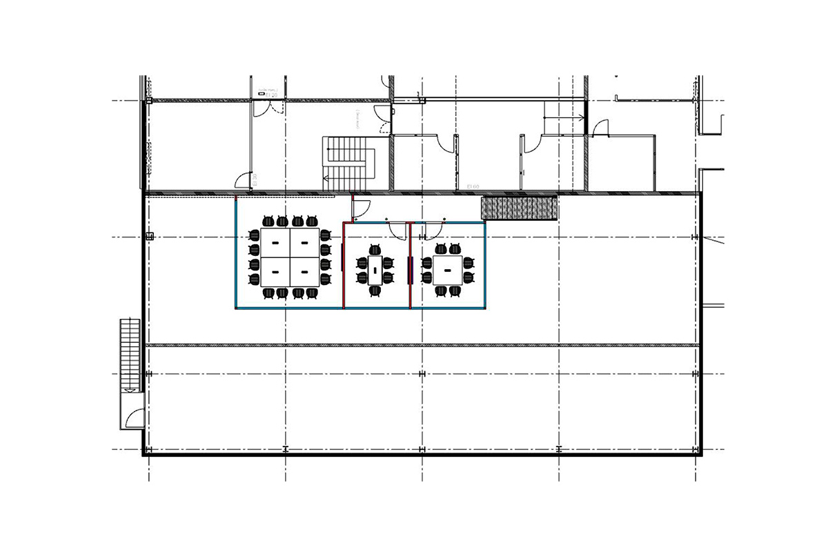
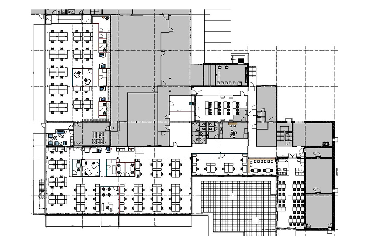
Transformation de bureaux à Lausanne

Ce projet fut un défi de par sa taille et de par sa complexité. L'ensemble des cloisons et des plafonds a été démonté pour ne garder que la structure. Dans l’espace principal, une mezzanine a été créée sur-mesure afin de mettre en valeur les volumes et pour y implanter les différentes typologies d’espaces telles que : des zones de silence, des zones d’impression et des salles de réunion. Pour l’ensemble du projet, un grand travail au niveau de l'éclairage a été réalisé en collaboration avec l'un de mes partenaires, spécialisé dans ce domaine.

AB Transformation de bureaux à Lausanne AB Transformation de bureaux à Lausanne AB Transformation de bureaux à Lausanne AB Transformation de bureaux à Lausanne AB Transformation de bureaux à Lausanne AB Transformation de bureaux à Lausanne AB Transformation de bureaux à Lausanne AB Transformation de bureaux à Lausanne AB Transformation de bureaux à Lausanne AB Transformation de bureaux à Lausanne AB Transformation de bureaux à Lausanne AB Transformation de bureaux à Lausanne AB Transformation de bureaux à Lausanne AB Transformation de bureaux à Lausanne AB Transformation de bureaux à Lausanne AB Transformation de bureaux à Lausanne AB Transformation de bureaux à Lausanne AB Transformation de bureaux à Lausanne AB Transformation de bureaux à Lausanne AB Transformation de bureaux à Lausanne AB Transformation de bureaux à Lausanne AB Transformation de bureaux à Lausanne