05

AC

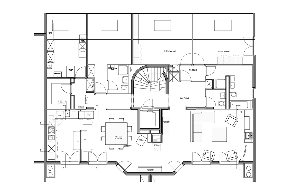
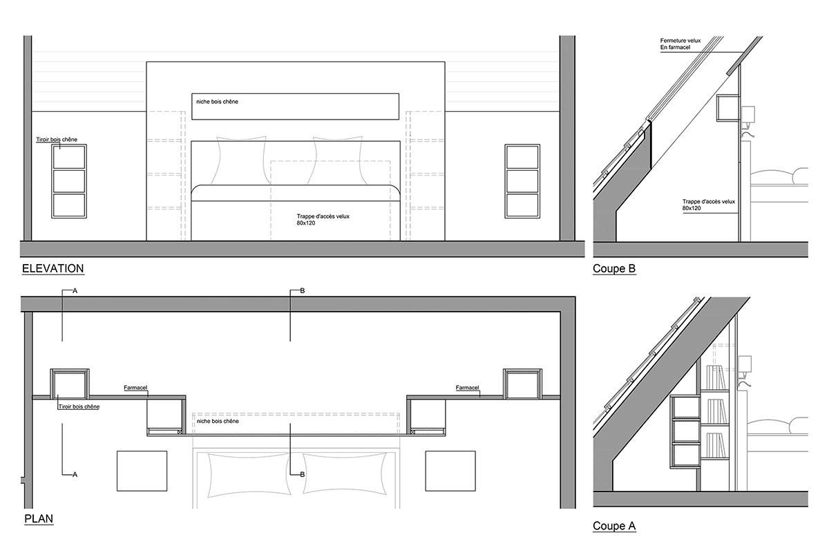
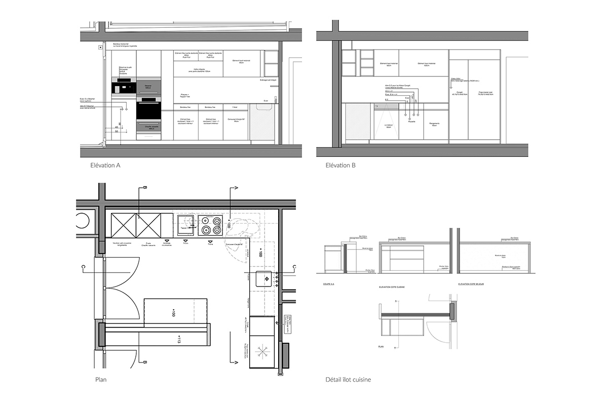
Rénovation d'un appartement à Chexbres

Le client souhaitait apporter de la luminosité dans leur chambre parentale et dans l’espace de vie principal. Nous avons donc retravaillé l’ensemble du séjour et de la salle à manger pour y apporter une touche de modernité et de simplicité.

AC Rénovation d'un appartement à Chexbres AC Rénovation d'un appartement à Chexbres AC Rénovation d'un appartement à Chexbres AC Rénovation d'un appartement à Chexbres AC Rénovation d'un appartement à Chexbres AC Rénovation d'un appartement à Chexbres AC Rénovation d'un appartement à Chexbres AC Rénovation d'un appartement à Chexbres AC Rénovation d'un appartement à Chexbres AC Rénovation d'un appartement à Chexbres AC Rénovation d'un appartement à Chexbres AC Rénovation d'un appartement à Chexbres AC Rénovation d'un appartement à Chexbres AC Rénovation d'un appartement à Chexbres